



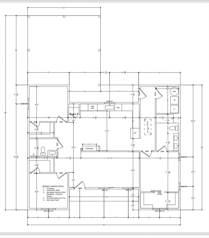
New Construction • Energy-Efficient • Home location is USDA Eligible with zero down! Experience exceptional living in this beautifully designed 3-bedroom, 2-bath, 1,364 sq ft new construction home, complete with a rear-entry carport and abundant parking. Thoughtfully crafted for comfort, efficiency, and durability, this home truly stands out. Step inside to an inviting open-concept floorplan—perfect for entertaining and everyday living. The spacious kitchen is ideal for meal prep, serving, or gathering with family and friends. A split-bedroom layout provides added privacy, making the primary suite a peaceful retreat. Built with long-term savings and structural integrity in mind, this home offers numerous high-performance features, including: • Spray foam insulation • 2x6 walls with monopoly framing for superior strength and efficiency • Zip System sheathing delivering an air- and moisture-tight seal from slab to roof • Hardie Board concrete siding • Expertly waterproofed vinyl windows. Topping the list of premium upgrades is the stone-coated steel Tek-Roof, boasting a Class 4 impact rating, resistance to hurricane-force winds, and protection from hail up to 2 inches—all designed to enhance durability and reduce insurance costs. Inside, you’ll appreciate the low-maintenance vinyl flooring, granite countertops, and quality craftsmanship throughout. A high-efficiency 16 SEER Trane HVAC system paired with an Aprilaire Fresh Air System ensures superior comfort and indoor air quality year-round. This home isn’t just beautifully built—it’s a smart investment in comfort, quality, and energy savings. USDA ZERO-DOWN financing available! Don’t miss this energy-smart gem—schedule your private tour today!
| 3 days ago | Listing updated with changes from the MLS® | |
| 3 days ago | Listing first seen on site |

Did you know? You can invite friends and family to your search. They can join your search, rate and discuss listings with you.